
一、招商简介
(一)招商单位:长沙达美文化传播有限公司
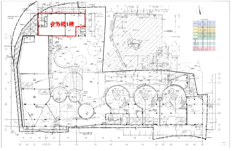
(二)招商位置描述:油脂厂1936业务楼1楼(301.2㎡);
(三)资产价值描述:一是项目优势:临湘江,毗邻五一商圈,紧邻地铁3号线灵官渡站,辐射橘子洲、杜甫江阁、恰同学少年广场等多个景点,正临地铁口3号线灵官渡站,周边居民人口及流动人口基数大;
(四)招商业态定位:文创商品策展销售/艺术策展/非遗展售等零售展陈业态/轻餐配套;
(五)资产示意图:

二、招商要求
(一)招商对象
在中华人民共和国境内注册的法人企业,依法取得企业营业执照且处于有效期;注册年限不得少于3年(报名截止日之前计算),注册资本金不低于100万元;营业执照范围须涵盖“文化艺术交流/活动策划/艺术品展示与销售/文创产品开发与零售”等经营范围内容。
(二)招商资格要求
1.在中华人民共和国境内注册的企业,并依法取得企业营业执照,且营业执照处于有效期;
2.被“国家企业信用信息公示系统”(https://www.gsxt.gov.cn/index.html)列入经营异常名录或严重违法失信企业名单的报名主体均不得参与本商铺评选。曾被“国家企业信用信息公示系统”列入经营异常名录的,但在报名截止日前已被移出的,视为符合要求允许参与该商铺评选;
3.本物业仅接受独立的公司制法人报名,不接受个人、个体工商户和联合体报名。
4.报名企业与达美公司不存在经济纠纷、法律诉讼等情况。
5.近三年(自提交申请文件截止日前三年,下同)内在与长沙城市发展集团有限公司及其下属公司的经营活动中没有重大失信行为(包括但不限于拒不履行相关义务、恶意拖欠相关款项等)。
6.在中华人民共和国境内注册的企业,依法取得企业营业执照且处于有效期;注册年限不得少于3年(报名截止日之前计算),注册资本金不低于100万元;营业执照范围须涵盖“文化艺术交流/活动策划/艺术品展示与销售/文创产品开发与零售”等经营范围内容。
注:招商报名时招商人会对以上要求进行初步审核,未满足以上前述条件的,不予报名、不得领取招商文件、不得参与评审。
7.招商报名时招商人会对以上(一)招商对象和(二)招商资格要求的条件进行初步审核,未满足以上前述条件的,不予报名、不得领取招商文件、不得参与评审。
(三)评选方法:本项目采取公开招商,综合评分的方式确定中选单位。
(四)商务条件
1.招商面积:301.2㎡
2.招商租期:2年;
3.合作方式:保底月租金或营业额分成两者取其高;
4.保底月租金:38333元/月(可在此基础上进行上浮报价,低于租赁底价为无效报价,取消参选资格);
5.分账模式:每月核算季度结算:每月底核算收银情况,如实际分成收入低于保底固租,若前面2个月分成金额没有达到保底租金,在第3个月结算时由承租方负责在10个工作日内一次性补齐季度的保底总租金,否则承担相关违约责任;
6.营业额分成比例:营业收入的10%;
7.履约保证金:2个月保底月租金;
8.物业管理费:12元/㎡/月;
9.免租期:2个月;
10.交付方式:现状交付;
11.交付时间:11月1日(暂定,以实际交付为准);
12.递增:前2年不递增。
(五)经营性条件
1.为保障油脂厂项目运营的活动内容持续性呈现,承租方须每年在油脂厂项目引入或主办不超过10场(其中周末档期不超过 5 场)符合油脂厂定位的活动(演艺/互动/品宣/策展/市集等),出租方给予无偿的场地使用支持(水电气及相关活动设施设备搭建、人员组织及活动宣传、卫生及安保及场地政府审批等均由承租方自行负责并承担相关费用)。承租方须至少提前15个工作日向出租方提交书面活动方案,出租方享有档期优先安排权,并以书面形式批复后方可实施。原则上单次活动含搭建时间累计不得超过30小时。
2.承租方独立承担该店铺经营所产生的一切费用,包括但不限于水电、燃气、空调、网络、设备运维、日常管理等经营性成本,并按双方约定的结算周期及时支付。
3.我司对该区域销售的产品品类享有不低于总SKU数量30%的决策权,以确保我司自营或合营产品具备充分的展示与销售空间。承租方应配合我司进行相应品类规划与调整。
4.承租方须严格遵守我司规定的营业时间(10:00–22:00)。如遇我司重大接待或其他特殊活动,应按照我司要求提前开门或延迟闭店,并予以积极配合。
5.“油脂厂艺术商店”(简称“油店”)的品牌名称及其相关知识产权为双方共同所有。未经对方书面同意,任何一方不得单独使用或许可第三方使用该品牌及其衍生产品及标识,双方应共同维护品牌形象与价值。
6.我司授权承租方打造独家社群厂牌,共同推动社群有机发展,具体授权内容及方案以我司审批的为准。
(六)其他要求
为满足相关的管理要求,取得承租资格单位在符合一般性要求外,须遵守以下规范的约束:
1.开放性:所有经营场所须具备对外开放性;
2.行政审批:合同签订后,凡经营涉及的所有行政许可和报批(包括但不限于消防、安全许可、专项资质认证、广告等)由取得承租资格单位自行负责。
3.不得有任何形式的分租、转租、承包,须由参加招商单位自行负责经营管理。
4.资产移交:按现状移交(交付标准见招商文件)。
5.装修管理:为推动项目有序运行,保障商户运营品质与高效履约,取得承租资格单位的装修方案(含店招及内装修方案)须呈报达美公司及行政管理部门批准,相关管理和退出条款将在合同中进行明确;装修完毕须通过住建、消防等相关部门综合验收合格后方可使用。
6.如取得承租资格单位有增加水电负荷需求,须符合达美公司的要求,并自行负责改造及承担费用。
7.取得承租资格单位,经营期间须严格遵守我司物业管理条例的规定,以维护油脂厂项目的秩序与安全。
8.承租人承诺在其经营活动中,严格遵守《中华人民共和国环境噪声污染防治法》《社会生活环境噪声排放标准》(GB 22337-2008)及《长沙市声环境功能区划分方案(2024年修订)》等相关法律法规规定的噪声排放标准。其经营场所边界处的环境噪声排放限值,特别是在夜间(22:00至次日6:00),不得超过相关规定标准。
注:参选即视为无条件认可招商人的租赁合同相关条款。
三、招商报名
报名时间:2025年10月25日—2025年10月29日17点截止,报名后现场领取招商文件,逾期不予受理;
(一)报名流程及提交资料
1.现场审核报名资格相关资料,包括但不限于公司营业执照、公司基本情况介绍、非法定代表人的经办人员提供法定代表人身份证复印件和经办人员身份证原件及复印件及法定代表人授权委托书、“国家企业信用信息公示系统”网站截图证明未列入经营异常名录或未列入严重违法失信名单并盖公章,均需查验原件,提交一套加盖公司公章的复印件;
2.报名资料审核通过后,缴纳招商资料费并领取招商文件(报名期内工作日时段),招商资料一旦领取,缴纳的招商资料费概不退还;
3.仔细阅读招商文件,确定报名意向后在城发集团招采平台(https://erp.csudgroup.com:9982)发布的招商公告内点击“我要报名”,登记业态品牌名称、联系人及联系方式;
4.登记成功后在招商公示报名截止日期前,缴纳参选保证金,以上四步均完成后方视为有效报名。
(二)审查保证金
2025年10月29日由招商人对报名递交资料进行前置审查,前置审查仅审查参选人是否足额缴纳了参选保证金,以及参选人提交的经营业态是否属于该项目招商业态范围,并不代表完全确认参选人的参选资格,以及参选人在参选日现场的所有资料文件均符合参选要求。对未在报名截止日前在长沙城市发展集团招采平台进行线上报名或未足额缴纳参选保证金或属于本次招商禁止业态的参选人,招商人将电话/短信方式通知参选人的参选资格初审未通过,无资格参与参选现场报价资格确认及后续的参选评审。
(三)按上述要求符合报名资格的参选人,招商人将电话/短信方式通知参选人通过前置初审资格。
四、费用缴纳
1.招商资料费:参选人现场领取招商文件时,应同时缴纳招商资料费200元/套(该费用已包含招商文件制作成本、图纸及我司信息资料价值)。无论是否获得承租资格,招商资料费概不退还,且不影响潜在参选人参与评审;
2.参选保证金:参选人需在报名截止日前以银行转账汇款形式支付参选保证金8万元(大写:捌万元整)至我司账户(2025年10月29日17:00截止,逾期缴纳或未按要求缴纳参选保证金的,取消参选资格)。
参选保证金账户如下:
户 名:长沙达美文化传播有限公司
开户行:建设银行长沙五一大道
账 号:43001500061050000452
五、评审时间及地点
1.评审时间:2025年10月31日上午10:00(最终以招采平台排期时间为准);
2.评审地点:长沙市岳麓区枫林三路交通枢纽西中心T2栋25楼长沙城市发展集团有限公司招采交易平台。
六、招商联系方式
1.联系人:邓女士13548688043;
2.联系地址:长沙市岳麓区先导路湘江时代商务广场A1座2层。
七、投诉及举报联系方式
1.监督部门:长沙城市发展集团有限公司纪检监察室
2.电话:0731-88797919
3.地址:长沙市岳麓区先导路湘江时代商务广场A1座13A层
4.邮箱:cscfjj@163.com